智能电子元器件 > 传感器 > 压力传感器
———— ————
———— ————
:
产品介绍
该系列压力变送器采用国际先进的高精度高稳定传感器,配以ASIS高性能放大电路,经过数千次疲劳冲击,高,低温循环老化及精密的数字温度补偿工艺,再经过不锈钢全封焊(激光焊接)精制而成;高质量的传感器,严格的校验工艺,及完善的装配工艺确保了该产品的优异品质。特别适合用于对液压、气压等介质的压力进行测量,甚至用于恶劣环境如污水、蒸汽、轻度腐蚀性、气体测量。砌底解决客户的各种需要;采用不锈钢整体构件,进口晶元封装的扩散硅芯体及先进的贴片工艺,具有灵敏度高、性能稳定、良好的抗冲击能力。316不锈钢全封焊接,结构小巧、紧凑,有良好的防潮能力和优异的介质兼容性;测量介质:弱腐蚀性的液体;弱腐蚀性的气体。

产品特点
特点:
■不锈钢隔离膜片一体化结构,可适应恶劣环境
■小体积,高精度,高性价比,高稳定性
■防雷击,抗电磁/射频干扰
■供电电源范围宽(10~30V)
■无灌充液体,受温度影响极小
典型应用:
液压气压控制
楼宇自控,恒压供水
自控系统和测试系统
地下水位、水库、水塔及容器等的液位测量与控制。

产品技术参数
| 主要技术参数 | |||
| 量 程 | -0.1~0~1~150(MPa) (量程可按用户实际需要定制) | 极限过载 | 200%FS |
| 综合精度 | 0.1%FS、0.25%FS、0.5%FS、1.0%FS | 响应时间 | 5 mS(上升到90%FS) |
| 输出信号 | 模拟量 4~20mA(二线制)、0~5V、0~10V(三线制) 数字量输出 RS485(modbus 协议,四线制) | 负载电阻 | 电流输出型最大800Ω;电压输出型大于50KΩ ;数字输出按芯片实际挂载能力 |
| 供电电压 | 24DCV(9~36DCV) | 绝缘电阻 | 大于2000MΩ (100VDC) |
| 介质温度 | -20~85~150~500℃,无标注时为常温85℃ 以内 | 密封等级 | IP65 |
| 环境温度 | 常温(-20~85℃) | 长期稳定性能 | 0.1%FS/年 |
| 零点温漂移 | ≤±0.05%FS℃ | 振动影响 | 在机械振动频率20Hz~1000Hz内,输出变化小于0.1%FS |
| 温度漂移 | ≤±0.05%FS℃ | 电气接口 | 紧线螺母,四柔敦厚芯屏蔽线,赫斯曼插头等 |
| 补偿温度 | 0~60℃ | 机械连接(螺纹接口) | G1/2、M20×1.5、M22×1.5等,其它螺纹可依据客户要求设计 |
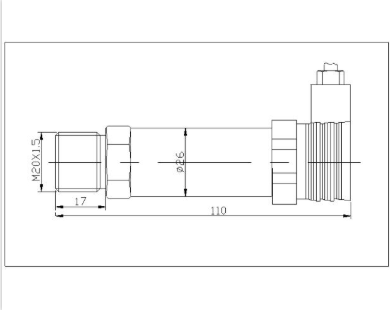
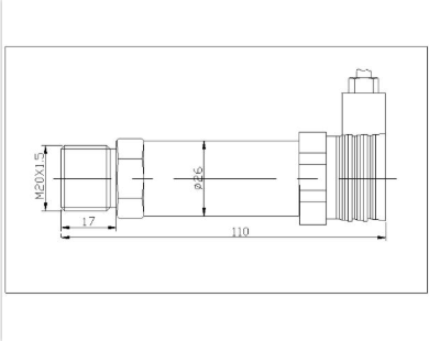
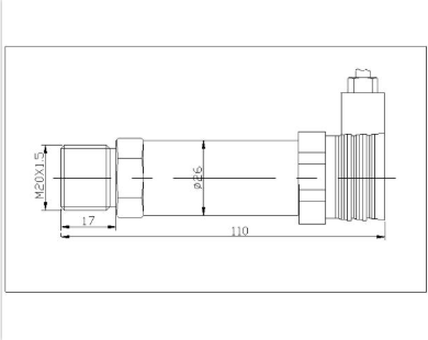
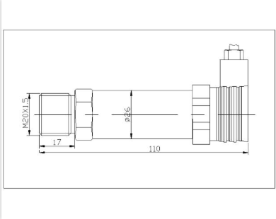
| 安全过载 | 150%FS | 外形尺寸 | M20×Φ26×110mm,以实际尺寸为标准 |

产品选型指南
| 选型指南举例(完整型号:PTH503-30M-mA-0.5-M20-3M-P) | |||||||
| 型号代码 | 测量量程 | 计量单位 | 输出信号 | 综合精度 | 机械连接 | 配线长度 | 带温度 |
| PTH503 | 30 | M | mA | 0.5 | M20 | 3M | P |
| 以实际数字标示 | M=(MPa) | mA=(4-20mA) | 0.5=(0.5%FS) | M20=(M20X1.5) | 3M=(3米线) | 带温度功能,针对RS485数字信号输出产品,没有此功能配置时缺省 | |
| K=(KPa) | 10V=(0~10V) | 以实际数字标示 | M22=(M22X1.5) | 以实际长度标示 | |||
| P=(Pa) | 5V=(0~5V) | M14=(M14X1.5) | |||||
| B=(Bar) | 4V=(1~5V) | G1/2=(G1/2) | |||||
| mH=(mH20) | R=(RS485) | G1/4=(G1/4) | |||||
| mmH=(mmH20) | N=(NB-IOT) | NPT1/4 | |||||
| G=(GPRS) | ZG1/4 | ||||||
| mV=(mV) | 以实际尺寸标示 | ||||||
提交成功后,系统会自动将您的文件发送至您的邮箱中
请注意,邮箱输入不正确会发送失败
* 未填写邮箱